Котел КВр-2,5
Котел КВр-2,5 мощностью 2,5 МВт (2,15 Гкал) для отопительных и промышленных котельных. Топливо - твердое, уголь. Завод изготовитель. Низкие цены. Отапливаемая площадь от 21500 м².
Описание
ПРАЙС-ЛИСТ - КОТЛЫ ВОДОГРЕЙНЫЕ
Особенности водогрейного котла КВр-2,5
- КПД свыше 80 %, минимальный расход топлива
- компактные размеры
- быстрый выход на номинальную мощность - 2-4 часа
- запас по мощности 15 %, сверх номинальной
- минимальные требования к качеству питательной воды
- удобные люки для очистки поверхностей нагрева
- заводская гарантия 2 отопительных сезона
Водогрейные котлы КВр 2,5 МВт имеют систему движения потока воды исключающую образование застойных зон, перегрев поверхностей нагрева, обеспечивают хороший теплосъем, отсутствие накипи и, следовательно, необходимость в водоподготовке. Качественная газоплотная теплоизоляция котлов КВр 2,5 гарантирует максимальное уменьшение потерь тепла через стенки котла и отсутствие присосов холодного воздуха в топку, делая процесс горения топлива более интенсивным и эффективным.
Большой объем топочной камеры обеспечивает более полное выгорание топлива и снижает механический и химический недожог. Котел КВр 2,5 с развитой конвективной поверхностью нагрева имеет температуру уходящих газов не более 200 °С и как следствие минимально возможные потери с уходящими газами. Котлы КВр 2,5 МВт изначально разработаны с целью снижения прямых затрат при производстве тепловой энергии за счет эффективного сжигания топлива и удобства его эксплуатации.
Устройство водогрейного котла КВр-2,5
Водогрейный твердотопливный стальной отопительный котел КВр-2,5 мощностью 2,5 МВт (2,15 Гкал), предназначен для получения горячей воды номинальной температурой на выходе из котла 115 °С рабочим давлением до 0,6 (6,0) МПа (кгс/см), используемой в системах централизованного теплоснабжения на нужды отопления, горячего водоснабжения.
Водогрейные котлы КВр 2,5 МВт выполнены двухблочными - блок котла и ручная топка (колосники чугунные или радиальная воздухораспределительная решетка). Блок водогрейного котла представляет собой сварную конструкцию, состоящую из трубной системы (радиационной и конвективной поверхности нагрева), опорной рамы и каркаса с теплоизоляционными материалами, обшитого листовой сталью. Котлы имеют П-образную сомкнутую компоновку. Топочная камера угольных котлов состоит из труб Ø 57x3,5 мм и выполнена газоплотной путем плавникового оребрения. Конвективная поверхность нагрева состоит из пакетов выполненных из труб Ø 57x3,5 мм, для интенсификации теплообмена трубы пакетов расположены в шахматном порядке. Газы в конвективной части делают два хода и выходят через газоход в верхней части задней стенки котла. В газоплотной части котельного блока изоляция выполнена облегченной из плит ПТЭ. В негазоплотной части котельного блока теплоизоляция выполнена из муллитокремнеземистого картона и войлока. Обшивка водогрейных котлов выполнена из стальных листов. Для очистки конвективных поверхностей нагрева от сажистых и золовых отложений предусмотрены люки.
Под колосниковой решеткой топка имеет воздушный короб с лючком для очистки короба от золы и шлака. Короб служит для распределения воздушного потока, поданного вентилятором. В нижней части конвективной поверхности находится зольный бункер с лючком для очистки его от золы. Топливо забрасывают равномерным слоем на колосники или РВР через загрузочное окно, закрывающееся топочной дверцей. В котле с колосниковой решеткой зола проваливается через отверстия в колосниках в воздушный короб, в котлах с топкой РВР выгруз шлака также производят через топочную дверцу.
В случае необходимости сжигания резервного топлива дров, в базовой модели котла КВр-2,5 устанавливается вторая топочная дверь.
Комплект поставки КВр-2,5
Котел стальной водогрейный КВр 2,5 поставляется готовым блоком в обшивке с чугунной топочной дверкой, с зольником и комплектом колосников, либо топкой РВР. С котлом поставляется паспорт и инструкция по эксплуатации водогрейного котла.
По запросу поставляется комплект обязательной арматуры, КИП и ДВ: затворы дисковые - 2 шт, запорные вентили - комплект, предохранительные клапаны - 2 шт, термометры с оправой - 2 шт, манометры с кранами - 2 шт, дутьевой вентилятор - 1 шт.
Кроме того котлы КВр-2,5 могут быть выполнены в двух вариантах изоляции: блок котла в обшивке и изоляции; блок котла (без обшивки и изоляции, под тяжелую обмуровку).
Дополнительная комплектация
Автоматика водогрейного котла - подбирается по техзаданию.
Твердотопливный котел КВр 2,5 работает с ДН 8 с дв. 15/1500 при сжигании каменного и дымососом ДН 9 с дв. 15/1500 при сжигании бурого угля. При установке дымососа на группу котлов, дымосос подбирается индивидуально согласно опросному листу.
При необходимости за котлом перед дымососом может устанавливаться золоуловитель ЗУ 2,15 или циклоны ЦН. При работе с золоуловителем устанавливается дымосос ДН 9 с дв. 15/1500.
Для обеспечения циркуляции воды через котел КВр 2,5 либо группу котлов применяется циркуляционный насос, для подпитки котла применяется подпиточный насос.
Дымовая труба - подбирается по техзаданию, на котел или группу котлов.
Транспортирование котлов КВр-2,5
осуществляется ж/д контейнером и автотранспортом. Для оценки стоимости доставки пришлите заявку и мы оперативно проведем расчет стоимости доставки котельного оборудования до вашего города или населенного пункта. Для вашего удобства предлагаем оформить заявку и уточнить интересующую вас информацию он-лайн.
Монтаж водогрейного котла КВр-2,5
Котел поставляется двумя блоками максимальной заводской готовности. Топка устанавливается в котельной на специально подготовленную ровную поверхность и закрепляется анкерными болтами. На топку устанавливается котельный блок. Далее котел подсоединяется по воде, устанавливается запорная арматура на подводящем и отводящем трубопроводе, устанавливаются предохранительные клапаны, дренажи и воздушники и контрольно измерительные приборы. Монтируется газоход.
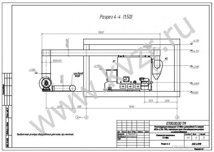
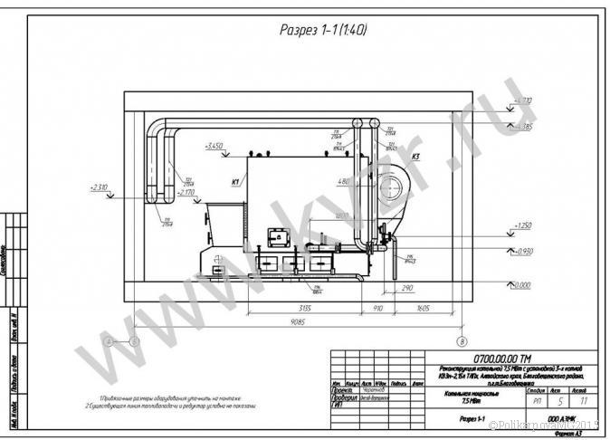
Котел КВр-2,5 с ручной топкой. Схема водогрейного котла
Купить котел КВр 2,5
Для того что бы купить котел КВр 2,5 вы можете сделать заявку в отдел сбыта по телефону (38-52) 29-97-41 (42), либо оформить заявку он-лайн. Наши менеджеры дадут консультацию по подбору вспомогательного оборудования для выбранных вами моделей и рассчитают стоимость доставки до вашего региона и населенного пункта. Также предлагаем вам выполнить проект реконструкции котельной.
Выполняем проекты реконструкции котельных
Цена от 30 тысяч рублей. В стоимость входят - выезд специалиста на объект, подбор вспомогательного оборудования, разработка проекта реконструкции тепломеханической части котельной, смета на выполнение работ, дефектная ведомость.
Характеристики
| Габаритные размеры, длина*ширина*высота | 3500*1900*3000 |
|---|---|
| Давление рабочей среды | 0.3-0.6 (3.0-6.0) |
| Низшая теплота сгорания топлива | 5230 |
| Вид топлива | Уголь |
| Отапливаемая площадь | 21500 |
| Расход теплоносителя среды | 86 |
| Мощность | 2.15 |
| Тепловая мощность | 2500 |
| Аэродинамическое сопротивление | 400 |
| Вид топки | Ручная колосниковая |
| Гидравлическое сопротивление при перепаде t | не более 0,07 (0,7) |
|---|---|
| Температура воды | 70-95 |
| Тяга | Уравновешенная |
| Отапливаемый объем | 64500 |
| Расход условного топлива | 370 |
| Расход топлива | 490 |
| Мощность | 2.5 |
| Температура уходящих газов | 200 |
| КПД, не менее | 85 |
| Марка | Котел КВр 2.5 |
Файлы для скачивания
Прайс-лист на котлы водогрейные (276,02 кБ)Отзывы
Похожие товары
Котельный завод «Росэнергопром» также представлен в категориях
Вы смотрели






